Ehemalige Villa Schaab

Trier-Süd, Stadt Trier Südallee 3

Beschreibung
An der Ecke Südallee / An den Kaiserthermen, früher "Schaabs Gässchen" genannt, ließ der Blaudruckfabrikant und Weingroßhändler Joseph Schaab über dem Weinkeller seine Villa bauen: ein viergeschossiges, repräsentatives Doppelhaus auf einer Grundfläche von über 420 m². Architekt war Eberhard Lamberty.

Im Erdgeschoss befanden sich die Gesellschaftsräume, im ersten Obergeschoss die Wohn- und Schlafräume, im Dachgeschoss die Kinderzimmer und die Zimmer für das Hauspersonal und im Souterrain waren die Küche und Vorratsräume, die Wasch- und Trockenräume, Büroräume und ein Laden für den Fabrikverkauf untergebracht, in dem Maria Schaab selbst zeitweise bediente . Vom Souterrain aus konnte man über zwei schmale Wendeltreppen unter den beiden Treppenhäusern in den für Vorräte abgetrennten Bereich des Weinkellers hinabsteigen. Hinter der Villa wurde ein kleiner, aber feiner Park mit Springbrunnen und exotischen Bäumen angelegt.

Noch 1897, als die Villa Schaab gebaut wurde, gab es in Trier nur eine Trinkwasserversorgung über Brunnen und eine Abwasserentsorgung über Sickergruben oder einige wenige Kanäle. Das Wasser musste auch in dieser prächtigen Villa in Kannen nach oben in die Bäder und Toiletten getragen werden und wurde über zwei Sickergruben hinter dem Haus entsorgt. Erst 1905 konnte die Villa an das neue städtische Trinkwasser-Versorgungssystem und an das Abwasser-Kanalsystem angeschlossen werden. Dazu mussten nachträglich im ganzen Haus Druckwasserleitungen aus Bleirohr eingebaut und die beiden Sickergruben mit dem neuen Abwasserkanal in der Südallee verbunden und stillgelegt werden. Auch Zentralheizung gab es um die Jahrhundertwende in Trier nicht, wohingegen man 2000 Jahre vorher seine Fußböden zentral über Hypokausten-Luftheizung erwärmte. Die Villa wurde mit Kachelöfen geheizt, die aus Quinter Gußeisenplatten zusammengesetzt waren. Zentrale Warmwasserversorgung gab es selbstverständlich auch nicht.

Ende des zweiten Weltkrieges, am 19. Dezember 1944, wurde in der Südallee nicht nur die Blaudruckfabrik und die Weinkeller, sondern auch die Villa durch Bomben weitgehend zerstört. Zwei Bomben schlugen im "Schaabs Gässchen" zwischen der Villa und dem fünfstöckigen Fabrikgebäude ein. Die zweite Bombe fiel in den Trichter der ersten. Sie durchschlug den Gewölbekeller und explodierte in ihm. Der tiefe Weinkeller galt als absolut bombensicher und war wie immer von der ganzen Nachbarschaft als Schutzraum aufgesucht worden. 21 Tote sind namentlich bekannt; einige konnten nicht identifiziert werden; einige wurden verschüttet und nie gefunden - überwiegend Frauen und Kinder.

1946 begann der Wiederaufbau: die Villa bekam ein neues Dach und wurde von einem Einfamilienhaus zu einem Sechs-Familienhaus umgebaut und vermietet. Alles musste schnell gehen, denn nicht nur das Wetter setzte den ungedeckten Gebäuden heftig zu, sondern auch die Plünderer. Es wurde alles geklaut was nicht niet- und nagelfest war und auf dem Schwarzmarkt verkauft. Jahre später zeigte ein Kleingärtner in seinem Schrebergarten hinter Olewig dem Verfasser stolz einige wertvolle, gusseiserne Ofenplatten von Kachelöfen aus der Villa Schaab, die er dort nach dem Krieg "organisiert" hatte.

Nach und nach wurden die Trümmergrundstücke vermietet und bebaut oder verkauft. 1963 kaufte die Stadt Trier das an der Südallee gelegene, vordere Drittel des Gesamtgeländes, etwa 5.500 m², um dort ihr neues Polizeipräsidium zu errichten. 1968 begannen die Abbrucharbeiten - 48.000 m³ Trümmer mussten abtransportiert werden - und 1970 die Bauarbeiten. Im Mai 1973 war Einweihung. Seit 2006 wird das Polizeipräsidium wegen "Schadstoffbelastung" nicht mehr genutzt und steht zum Verkauf.

Bereits vor der Fertigstellung des Polizeipräsidiums, am 14. Dezember 1972, hatte der Rat der Stadt Trier auf Vorschlag des Kulturdezernenten Dr. Emil Zenz beschlossen, "Schaabs Gässchen" umzubenennen. Von diesem Zeitpunkt an hieß es "An den Kaiserthermen".

Dr. Wilhelm Schaab, Trier, 2013

Zu den Bildern:
[1] Villa Schaab, 1900 - Ende 1944.
[2] Originalzeichnung des Architekten Eberhard Lamberty.
[3] Querschnittzeichnung des Architekten Eberhard Lamberty.
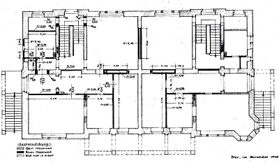
[4] Grundriss Erdgeschoß (fett gezeichnet Umbau 1946).
[5] Villa Schaab nach dem Wiederaufbau 1946-1970.

Einordnung
Ersteller, Baumeister, Architekt, Künstler:
Lamberty, Eberhard (Architekt)
Kategorie:
Bau- und Kunstdenkmale / Wohn- und Wirtschaftsgebäude / Bürgerliche Wohn- und Wirtschaftsgebäude
Zeit:
1897
Epoche:
Historismus / Jugendstil

Lage
Geographische Koordinaten (WGS 1984) in Dezimalgrad:
lon: 6.64148
lat: 49.74884
Lagequalität der Koordinaten: Genau
Flurname: Ortslage

Internet
http://de.wikipedia.org/wiki/Trier-S%C3%BCd

Datenquellen
- Silvia Schmidt: Reichtum und Ruhm mit Wein und Farbe. Die Geschichte der Familie Schaab, Der Erste Weltkrieg brachte die Wende, Trierischer Volksfreund vom 4.8.2003.
- Wilhelm Schaab: Geschichte der Familie Schaab, Neues Trierische Jahrbuch 2003.
- Mechthild Schneider: Vom Blaudrucker zum Fabrikanten und Weinhändler, Nachfahren: Joseph Schaab macht aus einem Handwerksbetrieb ein Großunternehmen; Enkel Wilhelm ist Logistikexperte, Trierischer Volksfreund vom 8./9.10. 2011.
- Adolf Welter: Trier 1939-1945, Neue Forschungsergebnisse zur Stadtgeschichte Trier, 1998, S. 60f.

Bildquellen
Bild 1: © Privatbesitz der Familie Schaab.
Bild 2: © Privatbesitz der Familie Schaab.
Bild 3: © Privatbesitz der Familie Schaab.
Bild 4: © Privatbesitz der Familie Schaab.
Bild 5: © Privatbesitz der Familie Schaab.

Stand
Letzte Bearbeitung: 07.12.2013
Interne ID: 23598
ObjektURL: https://kulturdb.de/einobjekt.php?id=23598
ObjektURL als Mail versenden