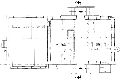
Ehemalige Villa Bellevue - Handaufmaß der Ruine

Trier-West/Pallien, Stadt Trier Mühlenweg

Beschreibung
Denkmal vor ungewisser Zukunft
An der 144 Jahre alten Villa Bellevue nagt unerbittlich der Zahn der Zeit - Renovierung nicht in Sicht

Von unserer Mitarbeiterin
SANDRA OST

PALLIEN. Die alte Villa Bellevue, ein fast vergessenes Trierer Kleinod des Klassizismus, verfällt zusehends und steht vor einer ungewissen Zukunft.

Hoch über der Kaiser-Wilhelm-Brücke steht in idyllischer Lage die Ruine eines alten Gebäudes, das vor über 100 Jahren beliebtes Ziel vieler Sonntagsausflüge der Trierer Bevölkerung gewesen ist: die alte Villa Bellevue. Jetzt im Sommer ist sie durch das dichte Grün der Bäume verhüllt. Aber wenn die Blätter gefallen sind, zeigt sie dem aufmerksamen Betrachter ihre noch immer harmonische und elegante Front. Schon lange Ruine, hat dieses Gebäude eine bewegte Geschichte.
Laut Angelika Meyer, Leiterin des städtischen Denkmalpflegeamtes, wurde das Gebäude Villa Bellevue bereits 1981 formell unter Denkmalschutz gestellt. 1982 mahnte auch der Verein Trierisch in seinem Neuen Trierischen Jahrbuch an, das Bauwerk nicht sterben zu lassen.

Villa beherbergte 1944/45 das Trierer Standgericht
Die Bellevue steht im Zusammenhang mit dem schräg daneben liegenden barocken Wettendorfshäuschen. Sogar die entsprechende Flur trägt den Namen dieses Gebäudes, das Bernhard Heinrich Wettendorf im späten 18. Jahrhundert erbaute. Gemeinsam mit vielen anderen Grundstücken aus seinem Besitz (auch das bekannte Balduinshäuschen befand sich in seinem Besitz) wurde es nach dem Tod Wettendorfs 1822 öffentlich versteigert.
Die Umgebung dieses Gebäudes war durch Wettendorf parkähnlich angelegt worden und lud zu ausgedehnten Spaziergängen ein. Bereits 1824 wurde im Wettendorfshäuschen eine Gaststätte eröffnet. Der Wirt Johann Peter Schneider zeigte sich einfallsreich, und sein Café wurde ein beliebter Ausflugsort der Trierer Bevölkerung. Schon 1854 wurde aber der gesamte Bering an Jakob Kieffer verkauft, Wettendorfshäuschen selbst war verpachtet. Kieffer ließ nun die Café Bellevue genannte spätklassizistische Villa errichten.
1858 eröffnete Kieffer seine Gaststätte Bellevue, ohne aber an den großen Erfolg des Wettendorfhäuschens anknüpfen zu können. Schließlich wurde das Anwesen 1871 von Hermann Brefeld gekauft. Der Rechtsanwalt aus Essen ließ den Park um die Villa bestens pflegen und nutzte sein schönes Heim nur noch als Privatdomizil. Ab jetzt bürgerte sich auch der Name Villa Bellevue für das Anwesen ein.
Nur 13 Jahre erfreute sich Brefeld an seinem Besitz, denn 1884 erwarb Bernhard Lieser, Wirt des Schneidershofes, das Anwesen Bellevue für 22 000 Mark, wie es in Lays Häuserverzeichnis von Trier vermerkt ist. Endlich wurde die Bellevue wieder als Gastronomieobjekt genutzt.
Zur Bellevue öffnete am 12. Oktober 1884 seine Türen für die Gäste. Lieser ließ kurz darauf als Erweiterung der Villa den Anbau einer Glashalle errichten. Alten Grundrisszeichnungen zufolge scheint der Glashallen-Anbau eine halbrunde Apsis gehabt zu haben, möglicherweise für Musiker.
1905 wechselte die Villa Bellevue wieder einmal den Besitzer, diesmal erwarb der Trierer Bankier Adrian Reverchon das gesamte Anwesen. Die Gastronomie verpachtete er allerdings, und der Pächter Block konnte noch bis etwa 1910 dort wirken. Als im Jahr 1912 die neuerbaute Villa Reverchon für ihre Erbauer bezugsfertig war, schloss die Gastwirtschaft Bellevue ihre Tore endgültig für die Öffentlichkeit.
Ab 1944 bis zum Ende des Zweiten Weltkriegs für Trier im März 1945 war in dem einstigen Ausflugslokal das Standgericht Trier untergebracht, das sich vorher unter dem Namen Kriegsgericht Trier in der Ostallee befand.
Anfang der 1980er Jahre ruinierte eindringende Feuchtigkeit das Gebäude, und ablösende Tapeten gaben alte Wandmalereien des 19. Jahrhunderts frei, die der Besitzer ausbauen ließ. Die Treppe wurde abgerissen und das Dach der alten Bellevue beschädigt, was den weiteren Verfall beschleunigte. Auch heute noch befindet sich das Anwesen, auf dem das ehemalige Wettendorfshäuschen und die Ruine der Villa Bellevue stehen, in Privatbesitz.
Eine weitere Nutzung oder gar ein Wiederaufbau sei zur Zeit nicht geplant, sagt der Eigentümer auf Anfrage des Trierischen Volksfreunds . Vielmehr sei die Zukunft der Villa Bellevue ungewiss.
Die Zerstörung der Bausubstanz ist allerdings auch schon sehr weit fortgeschritten, da seit knapp zwei Jahrzehnten kein intaktes Dach mehr die Mauern vor der eindringenden Feuchtigkeit schützt. Nur die schöne Fassade im spätklassizistischen Stil kündet noch immer von den vergangenen ruhmreicheren Zeiten des Hauses. [1]

Das Handaufmaß und die Fotos der Ruine wurden 1994 von Frank Weber für seine Diplomarbeit "Umnutzung der Villa Bellevue in ein Hotel für Trier" gefertigt. [Red.]

Einordnung
Kategorie:
Bau- und Kunstdenkmale / Wohn- und Wirtschaftsgebäude / Bürgerliche Wohn- und Wirtschaftsgebäude
Zeit:
1858
Epoche:
Historismus / Jugendstil

Lage
Geographische Koordinaten (WGS 1984) in Dezimalgrad:
lon: 6.629127
lat: 49.765345
Lagequalität der Koordinaten: Genau
Flurname: Wettendorfshäuschen

Internet
http://de.wikipedia.org/wiki/Trier-West/Pallien

Datenquellen
[1] Sandra Ost in: Trierischer Volksfreund vom 14.08.2002 und intrinet http://www.intrinet.de/regionales/trier/124139.php3
[2] Stadtplan von 1927.

Bildquellen
Bild 1: © Frank Weber, Saarbrücken, 2023.
Bild 2: © Frank Weber, Saarbrücken, 2023.
Bild 3: © Frank Weber, Saarbrücken, 2023.
Bild 4: © Frank Weber, Saarbrücken, 2023.
Bild 5: © Frank Weber, Saarbrücken, 2023.
Bild 6: © Frank Weber, Saarbrücken, 2023.

Stand
Letzte Bearbeitung: 06.09.2023
Interne ID: 52789
ObjektURL: https://kulturdb.de/einobjekt.php?id=52789
ObjektURL als Mail versenden